oficinas en renta en anzures, ejército nacional, miguel hidalgo

Anzures, Miguel Hidalgo (CDMX)

0 2 4 152 m2 m2

$65,000 MXN

Oficinas en Renta

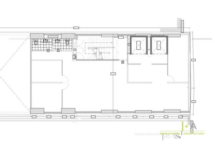
Moderna oficina ubicada en Ejército Nacional en la colonia Anzures lista para ser ocupadas, con acabados modernos cuenta con 152m2, espacio para privados y/o salas de juntas, espacio abierto, dos baños privados, cuenta con salidas de aire acondicionado, 4 lugares de estacionamiento con valet parking y dos elevadores. En el último nivel se encuentra el Roof Garden comunal con mesas y sillas para trabajar o comer al aire libre con una espectacular vista hacia toda la ciudad, así como espacio de cocina con horno de microondas y baño, es un solo edificio de 10 niveles con 9 oficinas en total con a penas 10 años de antigüedad, excelente ubicación y vista hacia el castillo de Chapultepec.

*Muebles no incluidos*
*EL PRECIO TOTAL no incluye Mantenimimento ni IVA*

*Sujeto a cambios de disponibilidad sin previo aviso. 

Todas las medidas enunciadas son meramente orientativas, las medidas exactas serán las que se expresen en el respectivo título de propiedad de cada inmueble

.
La propiedad no incluye muebles
La publicación de la presente información NO representa una oferta pública por lo que toda transacción debe de hacerse de forma personal de acuerdo con las prácticas comerciales de la inmobiliaria y para poder ser valida requiere de la autorización expresa

Términos y condiciones del inmueble

OFR35651


Cargando...


Cargando...

 

Lital Hulmi

Lital Hulmi

Agente inmobiliario

Contacto

 


Al ingresar tu email estas aceptando los Términos y Condiciones y has leído el Aviso de Privacidad